
군포역 직접 연결되는 군포 트리아츠 분양안내

연면적 약 7만4천여평의 초대형 매머드급 지식산업센터 현장
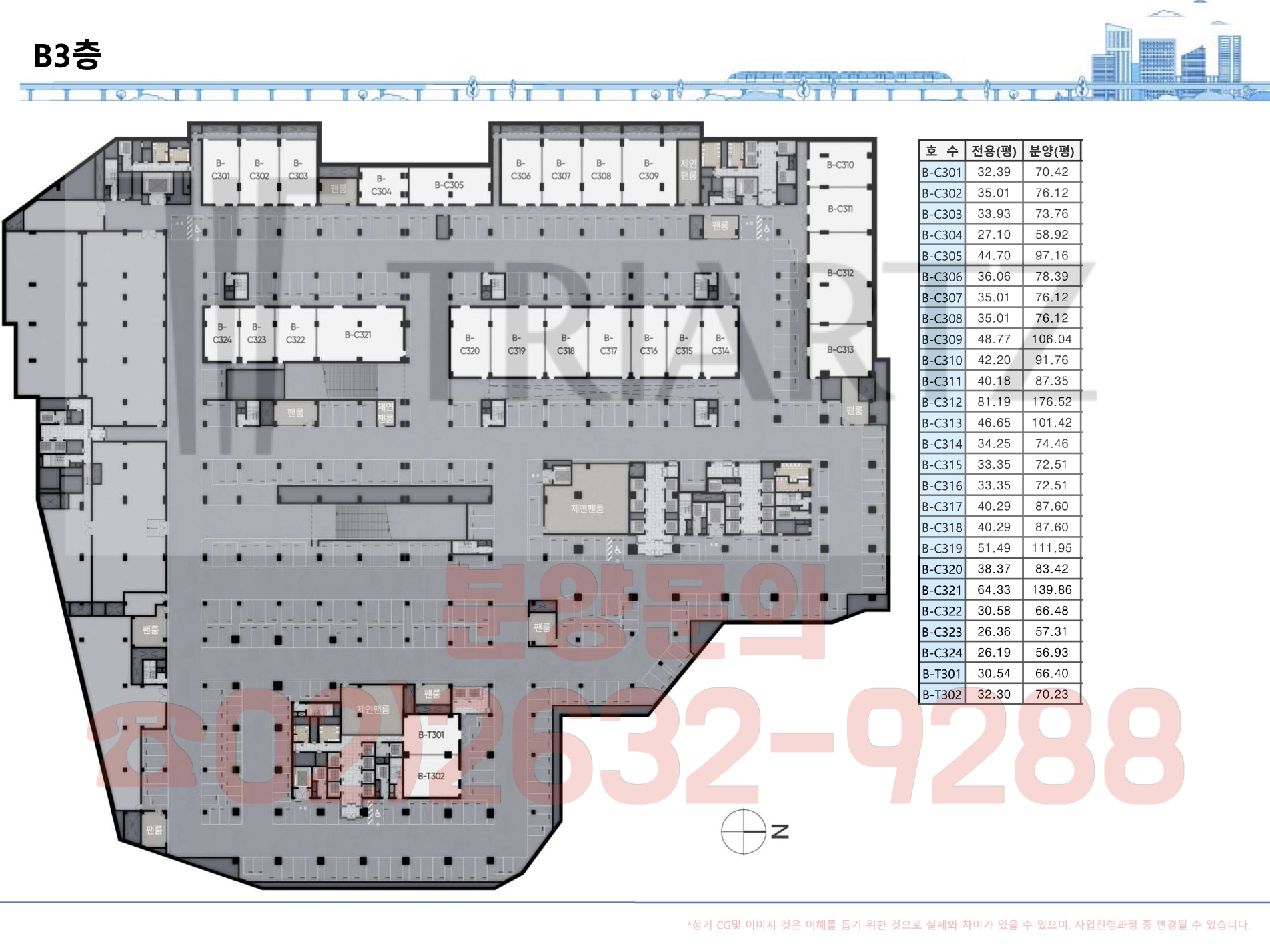
저층부 드라이브인 시스템으로 해당층 차량진입 및 물류 상하차 용의
군포역에서 직통으로 연결되는 초역세권 지식산업센터로 실사용, 투자가치 모두만족
전국을 잇는 사통팔달 쾌속 입체적 교통망의 트리아츠 지식산업센터
융복합 비즈니스 클러스터의 중심으로 점단산업단지와 시너지 효과와 인근 산업단지의 풍부한 배후수요를 누리는 입지위치
GTX-C와 역세권 개발호재의 수햬지로 내일이 기대되는 개발호재 프리미엄 입지를 가지고 있는 군포 트리아츠
군포의 새로운 비즈니스 랜드마크로 품격과 자부심을 담은 입면특화 랜드마크 외관디자인
사무실 앞까지 차량이 진입할 수 있는 도어투도어 시스템으로 물류 상하차가 편리한 시스템의 지식산업센터
직선 주행 3개층을 한번에 올라갈수 있도록 설계한 다이렉트 패스 특화 시스템을 갖춘 트리아츠 지식산업센터
실속 있는 설계로 더 여유롭게 이용할 수 있는 발코니 공각 확보(일부호실 제외)
군포역 지식산업센터 군포 트리아츠 홍보관 오픈중에 있습니다.
상세 안내 및 홍보관 방문을 원하시면 언제든 망설이지 마시고 꼭 연락 주시기 바랍니다.

















































'군포 초대형지식산업센터 트리아츠 > 군포역 초역세권 트리아츠 지식산업센터' 카테고리의 다른 글
| 트라아츠 지식산업센터 - 군포역 초역세권 사무실(고층부), 공장(저층부 드라이브인) (0) | 2023.11.13 |
|---|---|
| 군포 초 역세권 지식산업센터 군포역 트리아츠 분양안내 / 제조형(드라이브인), 오피스형 지식산업센터 트리아츠 군포역 지식산업센터 분양중! (0) | 2023.05.08 |
| 군포역 바로연결 지식산업센터 트리아츠 분양안내_ 제조형 드라이브인 / 고층부 오피스형(사무실) 초대형 초역세권 지식산업센터 트리아츠 분양중! 홍보관 운영중! (0) | 2023.02.09 |
| 지하철 군포역과 직접역결되는 초대형 지식산업센터 군포 데시앙플렉스(가칭) 분양안내! - 입주의향서 접수중! (0) | 2021.11.01 |
| 군포역과 바로이어지는 초대형 지식산업센터 분양안내! (0) | 2021.10.01 |